3320 Lugano Place
Los Angeles, CA. 90068
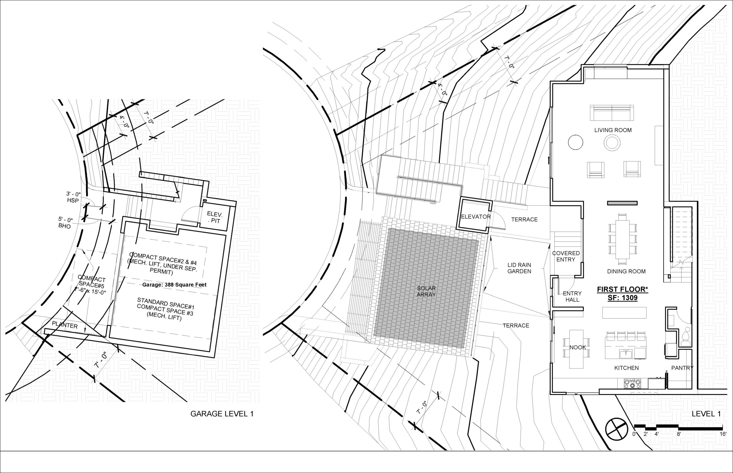
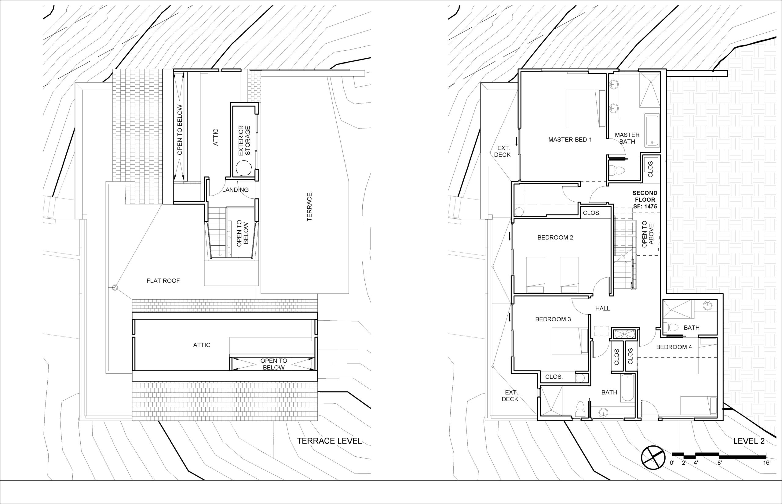
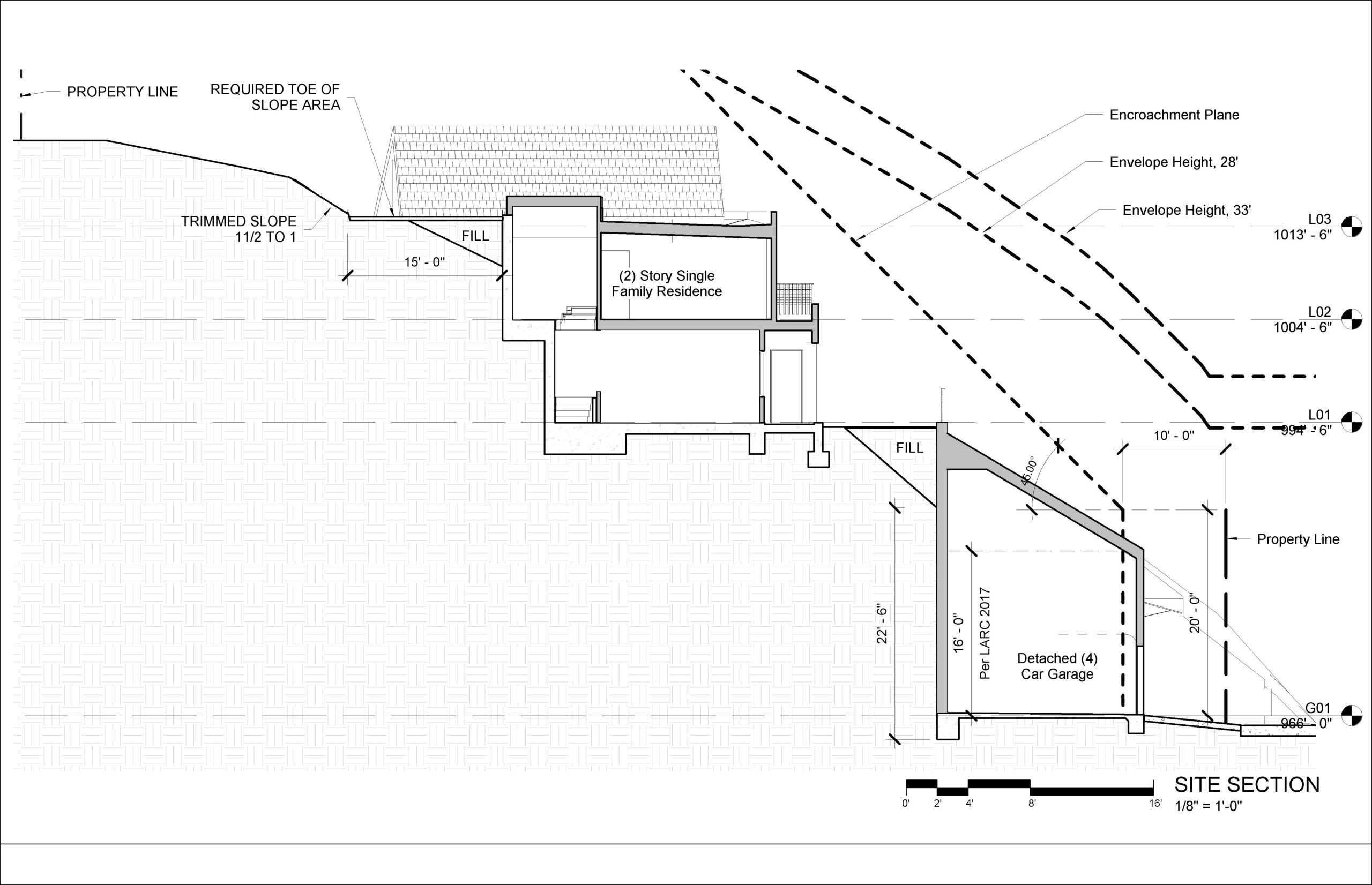
The project site is a 12,375sf up slope vacant lot located in Hollywoodland consisting of a 2,897 sf. two story house and a 397sf detached garage.
As you look over the vistas of Hollywoodland, one of the wonderful aspects of the area is the skyline of roof tops piercing through a well-established tree canopy. The proposed residence takes from that vision creating its own skyline by separating the roof into three separate masses. This gives the appearance that there are three small cottages placed on the hillside.


















