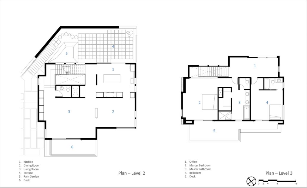
3314 Lugano Place
Los Angeles, CA.
3318 SF Single Family Hillside Residence
Located in Hollywoodland under the Hollywood sign the design has come about by working with the Design review board for Hollywoodland to achieve a design that reflects the European village character, yet conforms to the current regulations. The desired look of the European village and current regulations are at odds with each other so the design reflects the mediation of the two in a contemporary version of the historic area.











































